T.A. Greenleaf - Fine Woodworking and Home Building
Fine Woodworking and Home Building
Jefferson Mill Design Co.

House plans


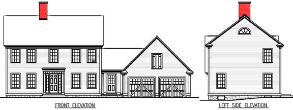
1851 Colonial

26' x 34' Colonial - 1851 sq. ft.
Living room with fireplace, dining room, kitchen, laundry room, mud room,
2-car garage, 3 bedrooms, 2½ baths
Printable floor plan


HOMEPHOTO GALLERYDESIGN/BUILDPROPERTY MANAGEMENTRESOURCESSAFETYJEFFERSON MILL DESIGN CO.ABOUTCONTACT